- Livnessトップ
- 買いたい
- 福岡県(駅)
- 筑紫野市天拝坂3丁目
筑紫野市天拝坂3丁目
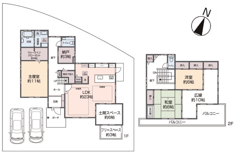
掲載の間取り図は設計図書を基に描き起こしたもので実際とは多少異なる場合があります。
掲載の間取り図は設計図書を基に描き起こしたもので実際とは多少異なる場合があります。
寫真をクリックして拡大
駐車2臺可/即引渡可/システムキッチン/角地/オール電化/食器洗浄乾燥機/納戸/IHクッキングヒーター/ウォークインクローゼット
-
-
- 価格
- 4,400 萬円(非課稅)
-
- 物件種別
- 中古売戸建
-
-
-
- 所在地
- 福岡県筑紫野市天拝坂3丁目
-
- 交通
-
西鉄バス「天拝坂第二」停まで徒歩5分
-
-
-
- 間取り
- 3LDK+S
-
- 建物面積
- 171.65m²
-
- 築年月
- 2003年12月(築21年)
-
- 階數
- 2階
-
-
ダイワハウス分譲(施工)
物件の特徴



-
- ダイワハウス分譲(施工)主
- 大和ハウス工業をはじめとする大和ハウスグループ各社が、分譲または施工した物件です。
-
- SumStock
- (一社)優良ストック住宅推進協議會、會員各社(大和ハウス工業(株)など住宅メーカー10社)が、住宅履歴?長期點検メンテナンス?耐震性能の3つの條件において優良な住宅と定義した物件です。
- 詳しくはこちら


地図
※ 地図內のマーカーの位置は実際の所在地とは多少異なる場合があります。
物件概要
- 物件ID:
- 36718
-
- 物件名
- 筑紫野市天拝坂3丁目
-
- 物件種別
- 中古売戸建
-
- 建物商品名
- アイ‐ウィッシュトレビュー03DCタイプ
-
- 所在地
- 福岡県筑紫野市天拝坂3丁目
-
- 交通
-
西鉄バス「天拝坂第二」停まで徒歩5分
-
- 価格
- 4,400萬円(非課稅)
內訳(土地:2,200萬円
       建物:2,200萬円)
-
- 建物の建築年數
- 2003年12月(築21年)
-
- 構造
- 軽量鉄骨造
-
- 階數
- 2階建
-
- 建物面積
- 171.65m²
-
- 間取り
- 3LDK+S(納戸)
-
- 土地面積
- 302.87m²(公簿)
-
- 建ぺい率/容積率
- 50%/80%
-
- 私道負擔
- なし
-
- 接道狀況
- (公道)南側幅員約5.5m?北側幅員約6.0m
-
- 土地権利
- 所有権
-
- 用途地域
- 第一種低層住居専用地域
-
- 地目
- 宅地
-
- 都市計畫
- 市街化區域
-
- 國土法屆出
- -
-
- その他制限
- 法22條區域?壁面後退1.5m
-
- 分譲時 売主
- -
-
- 施工會社
- 大和ハウス工業
-
- 駐車場
- 有
-
- 取引態様
- 仲介
-
- 現況
- 空家
-
- 引き渡し可能年月
- 即時
-
- その他費用
-
- 備考
- ※S=納戸
※掲載寫真、間取り図にあります家具?備品?車等は価格に含まれませんが、照明?カーテン?エアコンは含まれます
※建物面積:171.65㎡ 他に未登記増築部分約9.9㎡あり
【定期借地権付建物のみの販売も承ります】
定期借地権の概要(一般定期借地権/土地貸主:大和ハウス工業株式會社)
■存続期間/2055年3月17日まで
■保証金/2,000,000円 保証金は期間満了時に全額返還(無利息)
■地代(月額)/27,482円(1年ごとに改定)
■借地権の譲渡?転貸/可※ただし地主の承諾要(承諾料不要)
■期間満了時に更地返還要。建物の買取り請求、契約更新および改築等による期間延長不可。借地権設定登記/可
-
- 情報公開日
- 2025年11月06日
-
- 次回更新予定日
- 2025年11月20日
お問い合わせ先
大和ハウス工業株式會社
九州支社 福岡住宅事業部福岡営業所
TEL0120-301-131
営業時間(受付時間):9:00?18:00
定休日:水?日?祝日
所在地
福岡市博多區上牟田2丁目11番24號
地下鉄空港線「東比恵」駅3番出口または6番出口より徒歩12分
JR「博多」駅バスセンターより41番?43番雑餉隈行き乗車約15分、「上牟田」バス停下車徒歩3分
擔當エリア
福岡市全域と近隣地域
免許番號
宅地建物取引業者免許番號?國土交通大臣(16)第245號
所屬団體
(公社)福岡県宅地建物取引業協會會員
(一社)九州不動産公正取引協議會加盟





●50年以上の點検システムとメンテナンスプログラムを保有しており、その実施が行われている物件です。
●耐震性能基準を有する物件です。
さらに詳しく